- Ski amadé Internetpräsenz
- Schladming-Dachstein Card Partner
- Bestpreis Garantie
Host information
Facilities
-
Sport / Freizeit
- Adventure-Aktivitäten
- Adventure-Touren
- Aktivitäten am Berg
- Bademöglichkeit
- Berg- / Wanderführer
- Garten / Wiese
- Golf
- Kutschenfahrten
- Liegen kostenlos
- Liegewiese
- Pferdeschlittenfahrten
- Reiten
- Rodeln
- Schneeschuhwanderung
-
Einrichtungen Betrieb
- Baby-Badewanne
- Brötchenservice
- Eigener Garten
- Einstellplatz für Fahrräder
- Fahrradabstellplatz
- Familienangebot
- Familienfreundlich
- Gartengrill
- Gartenhaus
- Gartenmöbel
- Gebührenfreier Abholservice
- Gemeinschaftsgarten
- Gratis-Bahnabholung
- Grillhütte
- Grillplatz (mit Sitzbänken)
- Haussafe
- Haustiere nicht erlaubt
- Heizung
- Internetbenutzung gebührenfrei
- Klimaanlage
- Kräutergarten
- Motorrad-Parkplatz
- Nichtraucherhaus
- PKW-Parkplatz
- Reception 24 h
- Satelliten-TV
- Schuhtrockner
- Ski-Service-Raum
- Sonnenterrasse
- Terrasse
- Transferservice
- Unterstellplatz für Auto
- Unterstellplatz für Motorrad
- Waschmaschinenbenutzung mögl.
- WiFi
- Zimmer/App. mit Aussicht
-
Zahlungsarten
- Barzahlung
- Vorauszahlung
-
Verleih
- Nordic Walking Stöcke
- Rodelverleih
- Schlitten-Verleih
- Wanderstöcke
-
Tagung / Kongress
- WiFi
-
Lage
- Am Wanderweg
- Auf einer Anhöhe gelegen
- Berglage
- Direkt am Radweg
- Direkt an d. Ski-/ Wander-/ Bushaltestelle
- Direkt an der Loipe
- Ruhige Lage
- Waldnähe
-
Eignung
- Familien
- Geschäftsreisende
- Gruppen
- Jugendliche
- Nichtraucher
- Senioren
-
Fremdsprachen
- Deutsch
- Englisch
-
Einrichtungen Bauernhof
- Katzen
-
Wellness
- Infrarotkabine
- Sauna
-
Gruppen
- Gruppen möglich bis Pers.: 10
-
Conditions
Included: infrared cabin, electricity, heating, water, car parking
Contact & Directions
Appartements Hochegg
8973 Schladming-Vorberg AT
Photos
Apartments & Prices
Rooms
-
Room details
Our non-smoking apartment is for 1 to 4 persons.
It is equipped with shower and WC, radio, flat screen TV with SAT, sofa with bed function. The use of the W-Lan is of course free of charge.
Fully equipped kitchen with refrigerator, ceramic hob, microwave and dishwasher
Dishes, coffee pad machine,...
Hand and bath towels, bed and kitchen linen
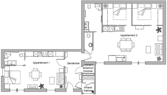
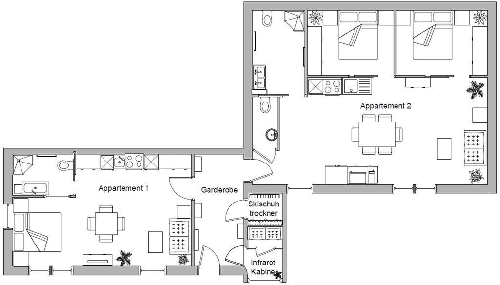
Apartment 1 is about 35 m² in size.Betten Verteilung
Doppelbett (1 Bett/2 Matratzen), Sofa, Ausziehbare Couch, max. Pers.: 2
Ausstattung Zimmer/Appartement
Kombi-Mikrowelle, Geschirrspülmaschine, Satellitenfernsehen, WiFi, Fernseher, Wohn-/Schlafräume kombiniert, Geschirr vorhanden, Lärmgeschütztes Zimmer/App., Radio, Bettwäsche vorhanden, Safe, Kochmöglichkeiten, Heizung, Zentralheizung, Internetanschlussmöglichkeit, Wasserkocher, Küchengeräte, Garten, Größe m²: 35, Vorraum, Decken, Terrasse (teilweise), Kabelfernsehen, Dunstabzug, CD-Player, Barrierefrei nach DIN, Moderne Möblierung, Gefrierfach, Neuwertiges Zimmer/App., Handtücher vorhanden, Kaffee-Maschine, Toilettenartikel, Radiowecker, Wiese, Backofen, Küchenzeile, Küche, Toilettenwäsche, Gefriermöglichkeit, Ohne Teppich, Haustiere nicht erlaubt, Geschirrspülbecken, Mikrowelle, Gartenmöbel, Tisch- und Küchenwäsche, Familienzimmer / app., Terrasse, Ruhiges Zimmer/Appartement, Nichtraucher Zimmer/App./Whg., Elektroherd, Haarföhn, Kühlschrank
Lage/Blick Zimmer/Appartement
Erdgeschoß / Parterre, Haupthaus, im Neubau
Sanitäre Ausstattung
Dusche, WC
-
Room details
Our non-smoking apartment for 1 to 6 persons
http://www.hochegg-schladming.at/images/appartements_hochegg1/tour2.html
Apartment 2 (for 1 - 6 persons)
with shower and toilet
Radio, flat-screen TV with satellite
Free Wi-Fi
Sofa with bed function
Fully equipped kitchen with refrigerator, ceramic hob, microwave, and dishwasher
Dishes, coffee pad machine,...
Hand and bath towels, bed and kitchen linenAusstattung Zimmer/Appartement
Nichtraucher Zimmer/App./Whg., Lärmgeschütztes Zimmer/App., Kühlschrank, Geschirr vorhanden, Kochmöglichkeiten, Handtücher vorhanden, Geschirrspülbecken, Küchengeräte, Familienzimmer / app., Radio, Separate Schlafzimmer: 2, Sitzgruppe, Wiese, Kabelfernsehen, Haarföhn, Gefriermöglichkeit, Ruhiges Zimmer/Appartement, Tisch- und Küchenwäsche, Satellitenfernsehen, Vorraum, Safe, WiFi, Heizung, Stereoanlage, Kombi-Mikrowelle, Backofen, Balkonmöbel, Fernseher, Ohne Teppich, Kaffee-Maschine, Toilettenwäsche, Zentralheizung, Garten, Küche, Elektroherd, Bettwäsche vorhanden, Größe m²: 64, Internetanschlussmöglichkeit, CD-Player, Toilettenartikel, Terrasse, Radiowecker, Gefrierfach, Schrank, Haustiere mit Rücksprache gestattet, Haustiere nicht erlaubt, Separate Küche, Mikrowelle, Küchenzeile, Dunstabzug, Wasserkocher, Geschirrspülmaschine, Moderne Möblierung, Wohn-/Schlafräume getrennt, Neuwertiges Zimmer/App.
Sanitäre Ausstattung
Fließendes Kalt- und Warmwasser, Dusche, WC, Doppelwaschbecken, Separates WC
Lage/Blick Zimmer/Appartement
im Neubau, Erdgeschoß / Parterre, Haupthaus
Betten Verteilung
Sofa, Ausziehbare Couch, max. Pers.: 2, Doppelbett (1 Bett/2 Matratzen)
-
Room details
Our non-smoking apartment for 2 to 10 persons
http://www.hochegg-schladming.at/images/appartements_hochegg1/tour2.html
Apartment TYPE3 (for 2 - 10 persons)
with 2 bathrooms, shower, and toilet
Radio, flat-screen TV with satellite
Free Wi-Fi
Safe
Sofa with bed function
Fully equipped kitchen with refrigerator, ceramic hob, microwave, and dishwasher
Dishes, coffee pod machine,...
Hand and bath towels, bed and kitchen linen
Barbecue facilities Gill hut
Children's playgroundAusstattung Zimmer/Appartement
Kühlschrank, Heizung, Garten, Elektroherd, CD-Player, Moderne Möblierung, Haarföhn, Internetanschlussmöglichkeit, Balkonmöbel, Küchenzeile, Wiese, Toilettenwäsche, Dunstabzug, Terrasse (teilweise), Toilettenartikel, Gartenmöbel, Kabelfernsehen, WiFi, Wasserkocher, Zentralheizung, Nichtraucher Zimmer/App./Whg., Ohne Teppich, Fernseher, Vorraum, Safe, Stereoanlage, Wohn-/Schlafräume getrennt, Wohnküche, Geschirr vorhanden, Handtücher vorhanden, Größe m²: 110, Geschirrspülbecken, Kaffee-Maschine, Radiowecker, Gefriermöglichkeit, Weckeinrichtung, Satellitenfernsehen, Lärmgeschütztes Zimmer/App., Mikrowelle, Küche, Radio, Neuwertiges Zimmer/App., Ruhiges Zimmer/Appartement, Tisch- und Küchenwäsche, Terrasse, Küchengeräte, Kombi-Mikrowelle, Bettwäsche vorhanden, Gefrierfach, Geschirrspülmaschine, Familienzimmer / app., Zimmer/App. mit Verbindungstür, Haustiere nicht erlaubt
Betten Verteilung
Sofa, Doppelbett (1 Bett/2 Matratzen), Ausziehbare Couch, max. Pers.: 4
Sanitäre Ausstattung
Separates WC, Doppelwaschbecken, Bad, WC, Dusche, Waschtisch, WC, Dusche, WC, Badezimmer Anzahl: 2
Lage/Blick Zimmer/Appartement
Haupthaus, im Neubau, Erdgeschoß / Parterre
-
Personal service
-
Secure with SSL
-
Independent ratings
-
100% Price transparency